Инсталляция Tece Profil для подвесного унитаза без кнопки (9300302)
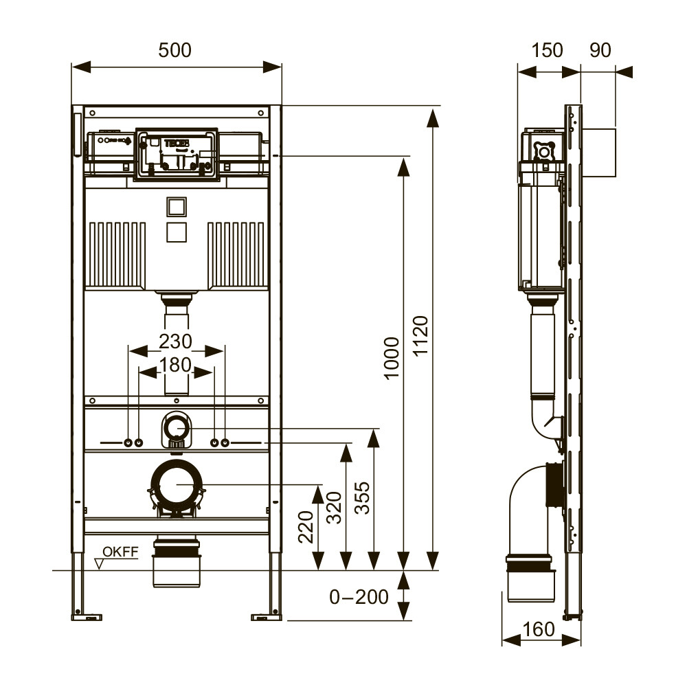
Инсталляция TECEprofil со смывным бачком Uni 2.0 предназначена для крепления на профиле TECEprofil или монтажа в металлических или деревянных каркасных стенах, перед стеной или в углу, а также подходи…
0 ₽
Нет в наличии
- Простой возврат товара
- Быстрая доставка
- Качественная продукция
- Скидки и бонусы
Инсталляция TECEprofil со смывным бачком Uni 2.0 предназначена для крепления на профиле TECEprofil или монтажа в металлических или деревянных каркасных стенах, перед стеной или в углу, а также подходит для сборки отдельного блока. Сливной бачок Uni 2.0 предназначен для фронтально расположенной панели смыва. Он выполнен из ударопрочного пластика, предварительно собран и опломбирован. Соединение для сливного бачка с наружной резьбой R 1/2″ сверху подходит для адаптеров быстрого подсоединения. Объем бачка составляет 10 л, предустановленный объем большого смыва – 6 л. Можно настроить объем смыва 4,5/7,5/9 литра. Объем малого смыва составляет 3 л в системе двойного смыва. Оставшийся объем можно использовать для быстрого смыва.
Несущая монтажная рама с…
ПОПУЛЯРНЫЕ ТОВАРЫ
Керамогранит New Trend Venice бежевый 600x600x9 мм (5 шт.=1,8 кв.м)
В наличии
Первоначальная цена составляла 4507 ₽.4507 ₽Текущая цена: 4507 ₽.упак
